Armor Door
Automatic X-ray proof sliding lead doors for hospitals typically consist of several key components, including:
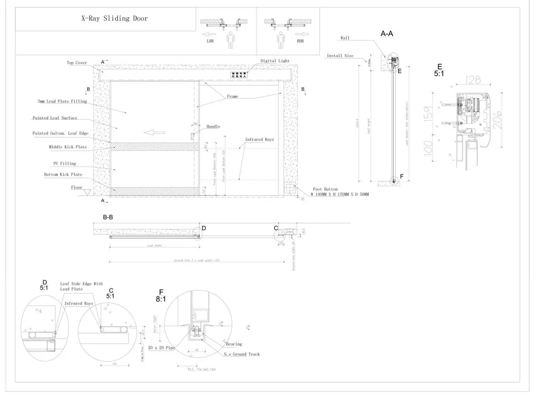
Lead-lined panels: The door panels are lined with lead, which is a dense and heavy metal that provides effective shielding from X-rays. The lead lining can be made from lead sheets, lead blocks, or lead-infused composites.
Sliding mechanism: The door panels are mounted on a sliding mechanism that allows them to move smoothly and quietly along tracks. This mechanism typically consists of rollers, guides, and a drive system.
Drive system: The drive system is responsible for moving the door panels. It typically consists of an electric motor, gear reducer, and control circuit. Some systems may also incorporate safety features, such as an emergency stop button and automatic reversal if the door encounters an obstacle.
Control circuit: The control circuit manages the operation of the drive system and the door. It typically includes sensors, switches, and other components that allow the door to be controlled and monitored.
Lead-lined jambs and thresholds: The door opening is surrounded by lead-lined jambs and a threshold, which provide additional shielding against X-rays. These components are typically made from the same materials as the door panels.
X-ray protective seals: The door is equipped with X-ray protective seals to prevent the escape of X-rays. These seals are typically made from flexible materials that can withstand frequent use and provide a tight, secure seal around the door.




















| Door leaf | 1.0 mm galvanized steel plate (honeycomb paper filled) |
| Track rail cover | High-strength aluminum alloy |
| Sensor | Infrared safety anti-pinch |
| Gas Tightness | High-strength aluminum alloy all four sides with sealing joint strip |
| Size | Customized per structural wall opening |
| Vision panel | Customized, double tempered glass / x-ray proof glass |
| Opening | Automatic/Manual (Optional) |
| Hold-close force | >70N |
| Opening speed | 250~500mm/s (adjustable) |
| Closing speed | 250~500mm/s (adjustable) |
| Manual pushing force | <100N |
| Lead panel | Equivalent is 1-3mmpb |
| CAD drawing | Provided before manufacture |




We are a leading supplier of various doors, including steel doors, hospital doors, and protective shielding solutions. Our experienced staff has over 10 years of experience in exporting doors to customers around the world. We take pride in using the highest quality materials and advanced manufacturing techniques to produce top-notch products that meet the needs of our customers.
Our manufacturing facility is equipped with the latest machinery and technology. Before production begins, we provide our customers with CAD drawings, ensuring that every detail is exactly to their specifications. Our fire-rated steel doors are UL listed, which means they have been tested and approved to meet strict safety standards.