1 / 5
Armor Door
| Customization: | Available |
|---|---|
| After-sales Service: | Online Technical Support |
| Warranty: | 2 Years |
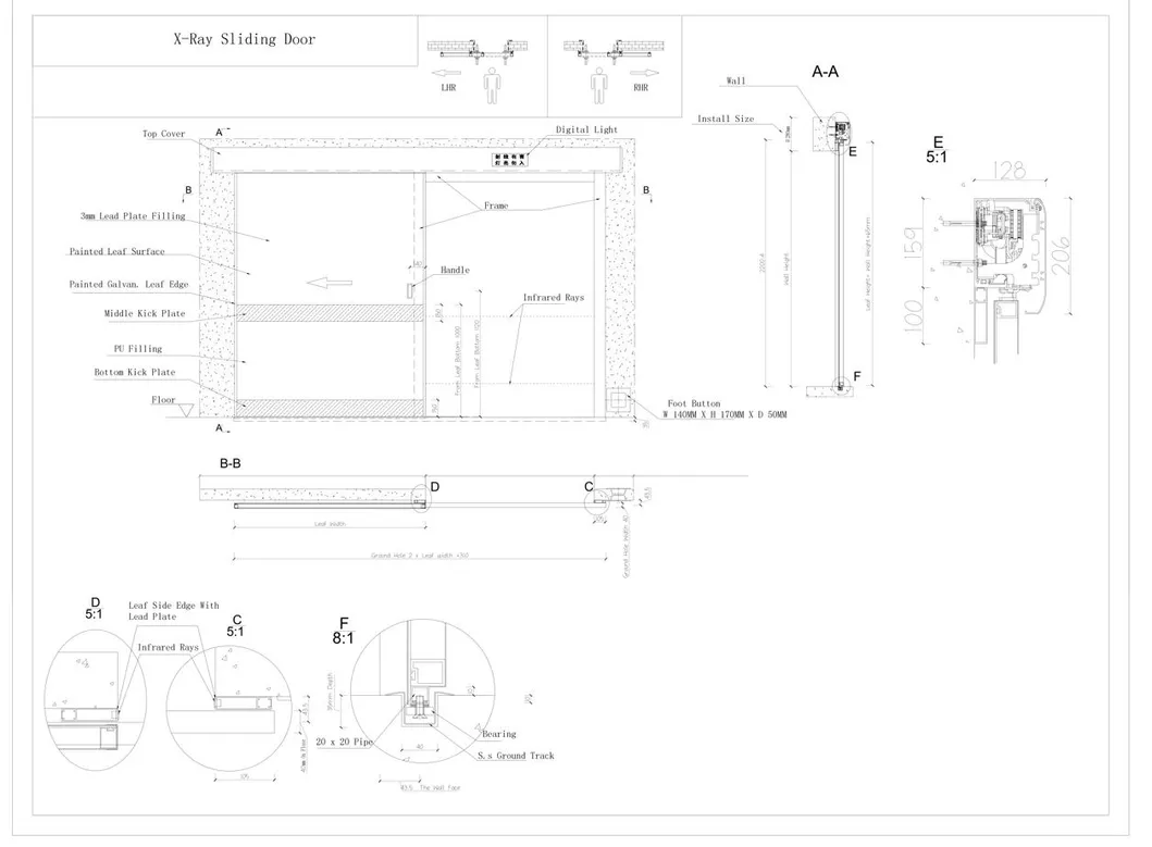
Automatic X-ray proof sliding lead doors for hospitals are engineered with specialized components to ensure safety and shielding:













| Door leaf | 1.0 mm galvanized steel plate (honeycomb paper filled) |
| Track rail cover | High-strength aluminum alloy |
| Sensor | Infrared safety anti-pinch |
| Gas Tightness | Aluminum alloy with four-side sealing joint strips |
| Vision panel | Double tempered glass / X-ray proof glass |
| Opening speed | 250~500mm/s (adjustable) |
| Closing speed | 250~500mm/s (adjustable) |
| Lead panel equiv. | 1-3mm Pb |


Our facility is a state-of-the-art manufacturing center equipped with the latest machinery and technology. We specialize in producing high-end doors that meet global standards of quality and safety.
Before production, we provide professional CAD drawings to ensure every detail matches the specific requirements of the project. Our skilled workforce crafts each door with precision and care, ensuring durability and high performance in medical and industrial environments.